In the prototype, randomly rotated cubes intersected
to create new spaces to the different programs. This
time, the two angles that will be taken in the archive
project are the street angle
and the solar angle. The four shapes used are rectangles
of different dimensions. The green roof is located
only at the slanted roof. It is accesible only for control
purposes. It is closed to public and open to sta.
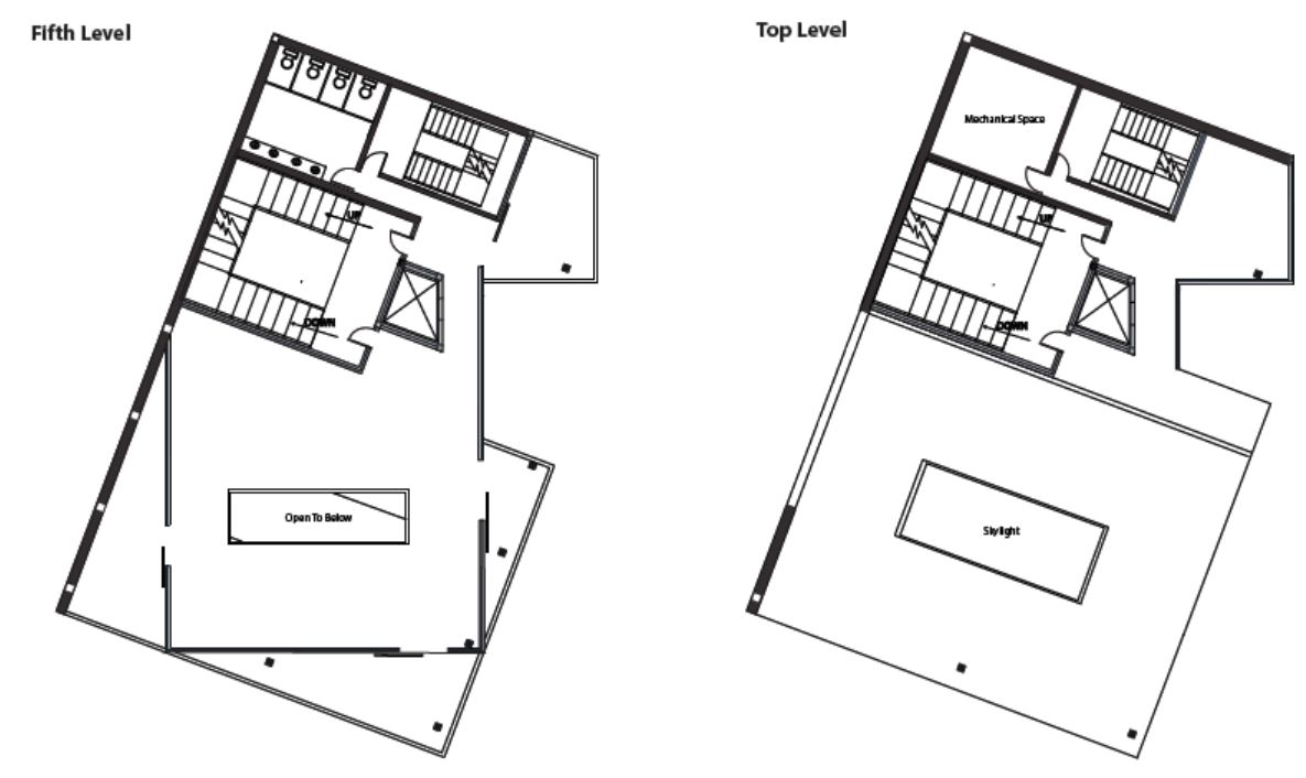
There is a skylight on the roof at the same angle as
the void spaces.
Since the roof is slanted, in case of too much rain,
there is a little water collector at the lower edge of
the roof. This rain water will then be filtered and used
for irrigation and other purposes.
Site Plan
Prototype
Programme Diagram
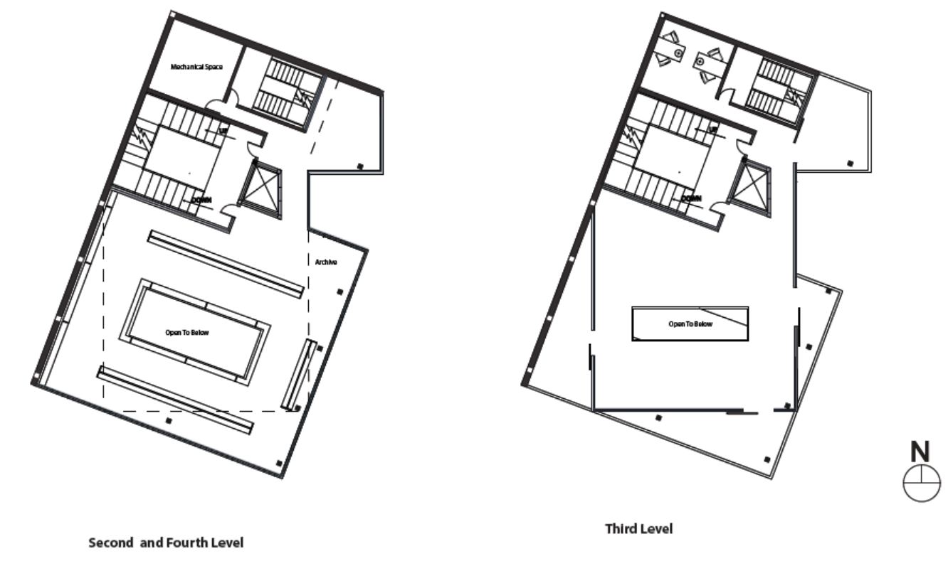
Plans
Sections
Render
Model
Pdf File











Recent Comments