For our precedent analysis we looked at FOA’s Carabanchel housing in Madrid, Spain. In this project there are vertical shared circulation cores between units, therefore minizing horizontal circulation areas and they also have shared wet walls, making the plumbing more efficient. All units have balconies on both East and West facades allowing for both living spaces and bedrooms to have access to direct sunlight. Moreover, the building is unified with the skin, which is made of lowered bamboos that the inhabitants can open or close, activating the facade of the building.
For our skin studies, we looked at snake skin, and how the flakes layer up to create the surface of the skin. This allows the structural flexibility, as it can easily form curves, or wrap around the corner. Its mat structure arrangement provides formal and organizational control. Open and closed conditions can be altered at different densities depending on how flakes are open in an area.
Snake Skin
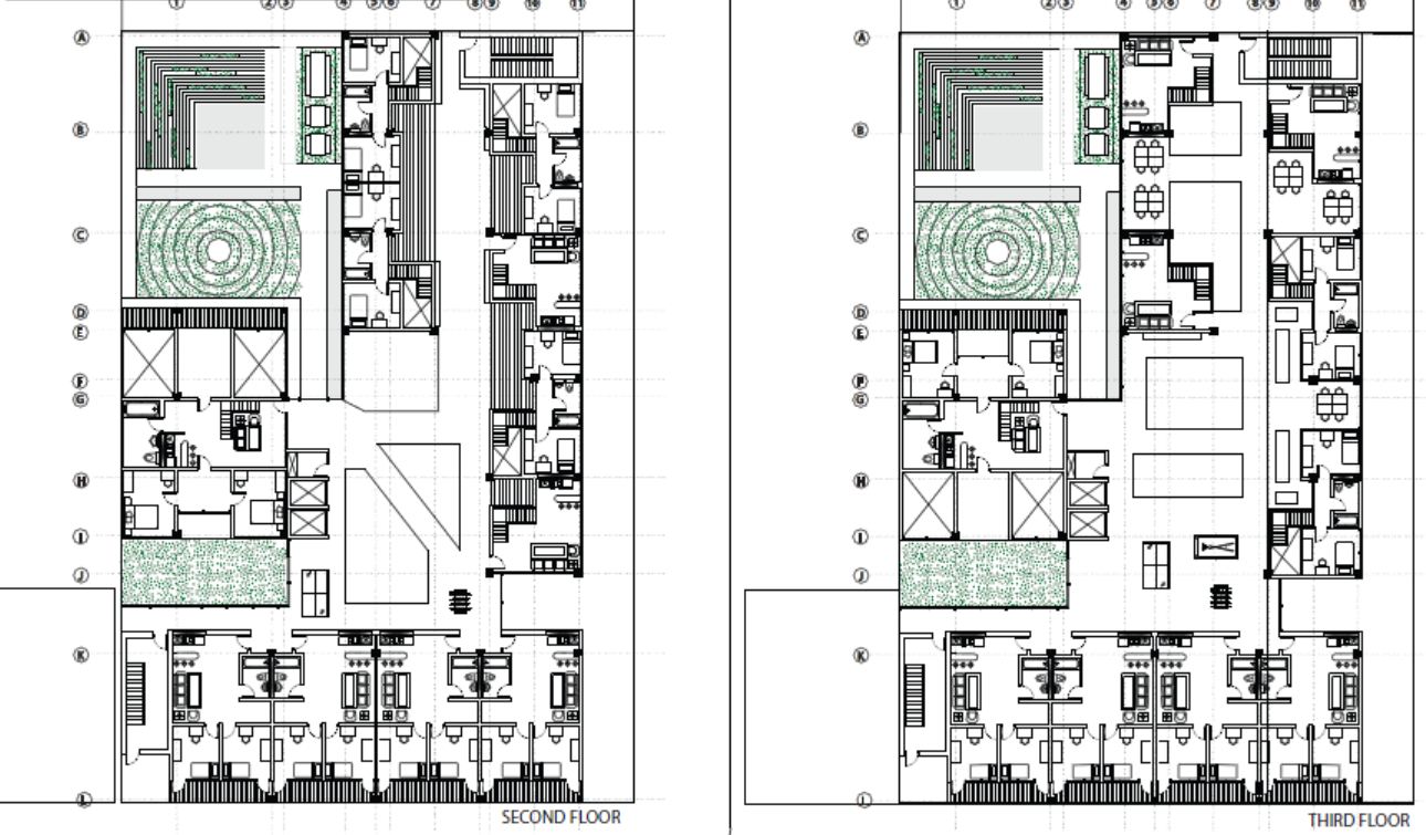
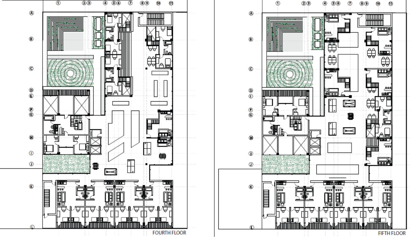
For our dormitory project, the main idea was to create a sense of community, taking the way life is experienced at pratt, where there are many areas and neighbourhoods that share common public areas and green spaces. We intended to bring that to the building scale creating three different neighbourhoods with different unit types that create privacy and interactive differences, and make the the public spaces in-between to be about the interaction between the inhabitants of the neighbourhoods.
Site Plan
Sun Path Diagram
Unit Types Diagram

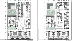
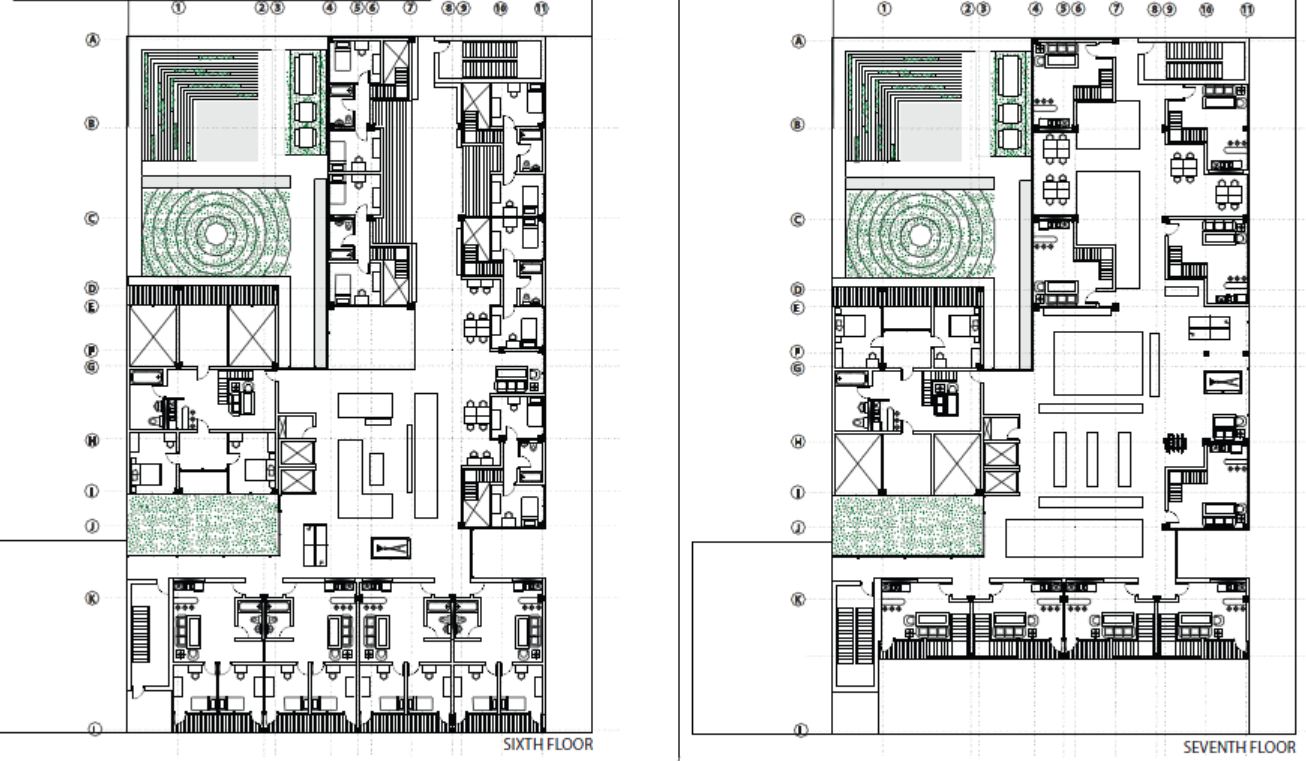
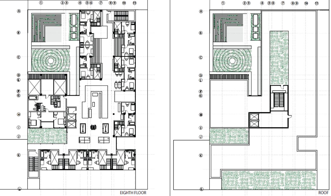
We have four different unit types that are arranged the different neighbourhoods. In neighbourhood A there is unit type 1: single double height room, that share a bathroom and living area including two balcony areas per floor: so there is interaction between different units in the same floor. Neighbourhood B has two bedroom, one bathroom two level unit, where the living area is on the first floor and the bedroom and the bathrooms are on the second level. The way the units are organized allow the public spaces to blend in between the units and by making it porous we also created interactions between the public spaces from different floors. Neighbourhood C is the most private one where the only shared space between the units is at the entrance space. In this neighbourhood there are two different unit types: On the first six floors of the building there is a two bedroom one bathroom single level unit, and on the last floor there are single double level units, where the living area is on the lower level and the bedroom and the bathroom are on the mezzanine level; leaving the living room a double height space.
Circulation Diagram
We have vertical shared circulation for each floor (two elevators and two egress stairs), then there is a horizontal circulation per floor, which is a double loaded corridor, and then a secondary circulation which creates the entrance spaces for each unit.
Structure Diagram
Public Spaces

Facade Systems
We adapted the skin to become a system that wraps around the building and that can be activated by allowing the inhabitants to open and close it in a variety of ranges. Accordingly they can control the amount of direct sunlight and airflow that comes into the building. As it is located on the outside of the balconies, it can act as insulation making them usable during winter time.
Models
Half Scale Model
1/8 Scale Model
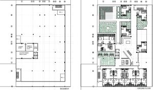
Plans

Detailed Section
Elevations
Renders

Interior Renders
Building Environment
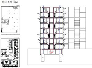
MEP System



Air Circulation

Natural Ventilation and Sunlight


Pdf Files
14FA_ADP_OYMEN + RIVERA_FINAL PROJECT






























Recent Comments