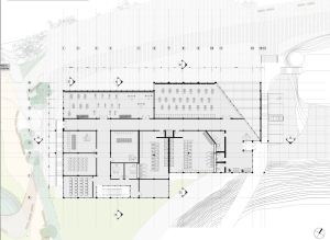
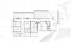
When we thought about a boathouse the image we wanted to have was a gym with a garage(storage) in it. To achieve that image, first we made the entrance in the second floor with the most of the communal spaces. It opens up to the multipurpose room that has all the trophes and pictures of the team which we thought would enhance and glorifies the spirit of the Columbia community. To emphasize the difference between the gym and the storage we used material difference:
– we made the second mostly glass which is a transparent and has a light appearance. For the private spaces we used opaque glass. Whereas the lower level is mostly stone which is a very heavy material.
– we wanted to show the significance of the second floor so the area is larger than the first one’s and spans over it as to glorify it.
Also to enhance the transparency we gave with the material, we also exposed the structure. In the second floor we can the beams runnig out of the building. Also the virendeel truss is shown in the weight room. Most of the columns are on the outside of the building which supports the span while been exposed.
Plans

Diagram of Boats
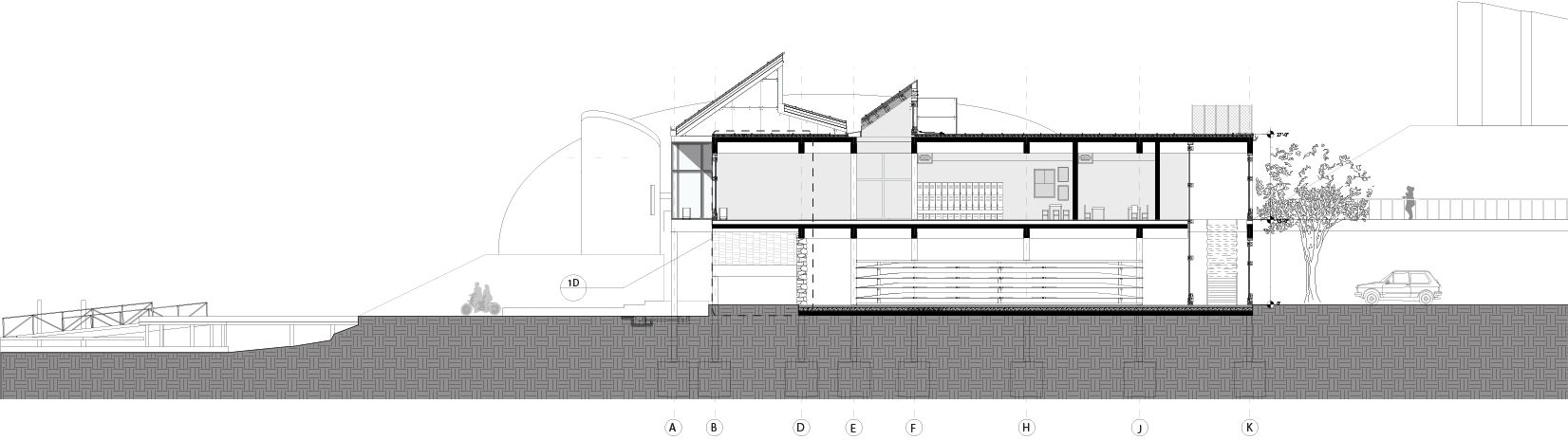
Sections

Detailed Section
Elevations
View Diagram
Building Services

Interior Renders


Models
Half Scale Model






















Recent Comments